
INTERIOR ARCHITECTURE
AND DESIGN

An example Project from Industry
Bespoke Floor Plans and Joinery
My work as a Design Assistant on this project prioritised attention to detail in the design floor plans and joinery tailored to the clients needs.

The Annexe
A showcase of bespoke interior joinery within a multi-functional annexe space. The clients sought to accommodate a variety of needs, balancing both social gatherings and personal leisure. The annexe was required to host family and friends for movie nights, cocktail making, and games. It was important for the space to function as a private retreat whilst also serving as an inviting space for entertaining guests.
A moody color palette was created to evoke the atmosphere of a cosy bar, yet remaining fresh and vibrant during the day.
This design features a TV cabinet aimed at minimising visible wires and consoles, whilst providing an enjoyable movie night experience for family and friends. To allow clear viewing of the screen from all seating, I designed a faux panel that would allow the TV to extend further from the shelves. Whilst the clients appreciated this concept, they opted instead for a lever mechanism to be installed behind the TV for ease of adjustment.



The bespoke bar unit was designed to cover a wall that concealed a boiler on the far left of the plan, ensuring both functionality and aesthetic coherence within the space. The color scheme mirrored that of the TV cabinet, incorporating earthy tones with contrasting hues to create visual interest. The clients requested a space to store alcohol behind pocket doors that, when opened, would sit flush with the joinery. This design, featuring downlit LEDs similar to the media unit, provided a well-lit and functional area. As the clients did not require a wine rack, the final drawings were adjusted accordingly. The finalised designs successfully met the brief and the clients were delighted with the result.
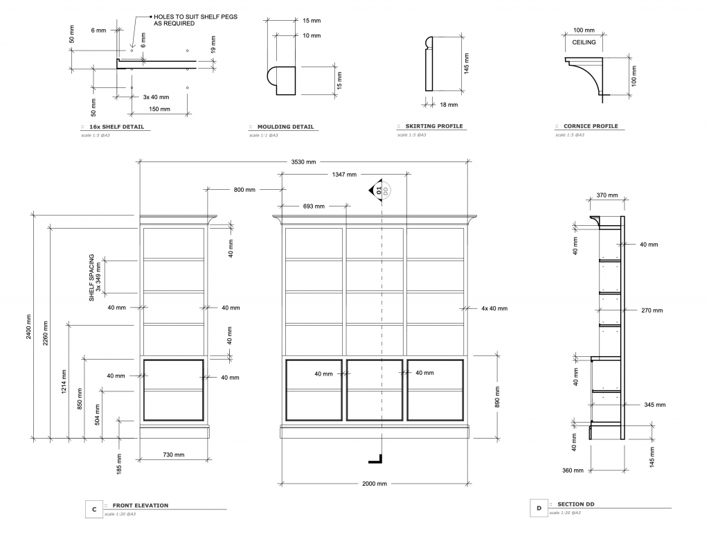
Bespoke joinery design requires not only a keen eye for aesthetics and current trends but also a solid understanding of specifications for manufacturers, contractors, and other stakeholders. Using SketchUp, I created a scaled 3D model of the bespoke joinery for a client. The image on the right shows the finished design, accompanied by detailed technical drawings to ensure the joinery is constructed to the highest standard.





Studies as an Interior Architect
In my last year of study, I completed three design projects which have been compiled into a portfolio. Additionally to this body of work, I wrote a dissertation titled as below:
My design work has focused on conservation and restoration – with emphasis on listed buildings. I have written a manifesto in this regard, to discuss its importance in higher education. The manifesto is titled:
PROTECTING THE PAST TO BUILD A FUTURE
How can a better understanding of the
differences between conservation and the
restoration of listed buildings lead to a
more sustainable approach to heritage
structures in the UK?
Higher education in the built environment profession lacks adequate focus on the conservation of historic buildings
CLICK BELOW TO READ PORTFOLIO & DISSERTATION
